string(4) "1640"

Котел 3,5 МВт газовый в Кыргызстане

Версия
для печати
В наличии на складе Цена в рублях с НДС 1 589 000
Получите скидку
у менеджера
Цена на котел 3,5 МВт газовый с доставкой от 1 589 000 рублей с НДС
Вид топкиГазовая горелка
Максимальная тепловая мощность, МВт3.5
ТопливоГаз
Отапливаемая площадь, м²29300-38400
Доставка ТК в Кыргызстан и по России
Безналичный расчет
Подобрать котел по мощности
Опросный лист
Эту продукцию можно
купить в лизинг
  • Технические
    характеристики
  • Описание
    товара
  • Комплект
    поставки
  • Дополнительно
    потребуется
  • Подключение и
    монтаж
  • Сертификаты и
    гарантии
  • Отзывы о
    продукции
  • Видео
    обзор
  • Подбор
    котла

Газовый котел HEATEXPERT надежная и эффективная водотрубная конструкция

  • Развитая конвективная поверхность нагрева снижает температуру уходящих газов 180-200°C - КПД 92%
  • Все элементы топочной камеры равномерно охлаждаются теплоносителем
  • Отсутствие трубных досок исключает деформации и разрывы сварных швов
  • Быстрый выход на режим и эксплуатационная гибкость
  • Высокая скорость потока теплоносителя (профилактика накипи) и минимальные требования к химводоподготовке

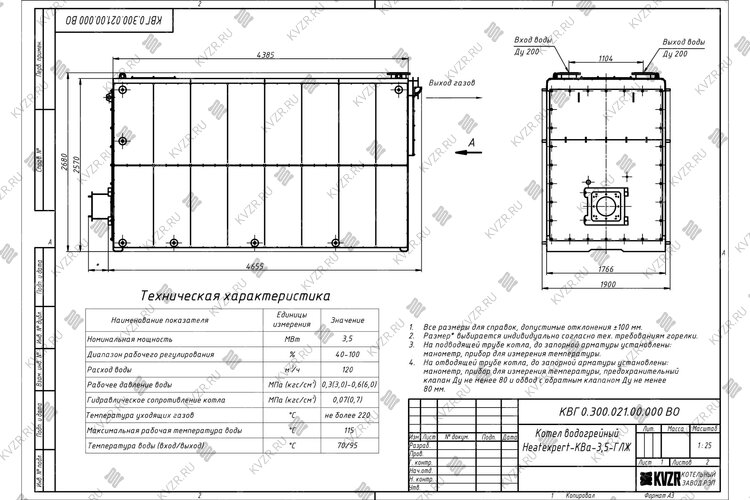
Технические характеристики газового котла 3,5 МВт

Тип Котел КВа
Тип отопительного котла Газовый
Бренд HeatExpert
Марка Котел Heatexpert
Вид топки Газовая горелка
Совместимое горелочное устройство Длинофакельные горелки отечественных и импортных производителей
Максимальная тепловая мощность, МВт 3.5
Максимальная тепловая мощность, кВт 3500
Максимальная тепловая мощность, Гкал 3.01
Диапазон регулирования мощности, % 40-100
Топливо Газ
Низшая теплота сгорания проектного топлива, кКал/нм³ 9400
КПД котла на ГАЗЕ, не менее, % 92
Расход ГАЗА среднечасовой за отопительный сезон, м³/ч 195
Расход ГАЗА при максимальной нагрузке котла, м³/ч 347
Расход условного топлива, кг/ч 466
Минимальная температура воды на входе в котел, °C 55
Максимальная температура воды на выходе из котла, °C 115
Давление воды, не более, МПа (кгс/см²) 0.3-0.6 (3-6)
Номинальный расход теплоносителя, м³/ч 120
Расход теплоносителя через котел min-max, м³/ч 90-150
Гидравлическое сопротивление при номинальном расходе, МПа (кгс/cм²) не более 0.07 (0.7)
Аэродинамическое сопротивление, Па (мм. вод. ст.) 280 (28)
Давление в топке, Па 330 (33)
Объем уходящих газов, м³/ч 7000
Температура уходящих газов, не более, °С 147
Тяга Принудительная
Водяной объем котла, л 1500
Объем топочной камеры, м³ 8.67
Размер топочной камеры, длина*ширина*высота, мм 4100х1510х1400
Присоединительные размеры по водяному тракту, Ду 200
Присоединительные размеры газохода уходящих газов, ширина*высота / сечение, мм/м² 1100х215/0.24
Размеры корпуса котла: длина*ширина*высота, погрешность ± 50, мм 4400х1765х2570
Габаритные размеры котла, длина*ширина*высота, мм 4630х1905х2670
Масса, кг 6100
Вид Водогрейный
Конструкция котла водотрубная
Количество контуров Одноконтурный
Размещение Напольный
Тип камеры сгорания Закрытый
Управление Электронное
Принцип работы газового котла Конвекционный
Энергонезависимый Нет
Тип питания Трехфазное
Встроенный циркуляционный насос Нет
Встроенный расширительный бак Нет
Энергоэффективность Высокая
Отапливаемая площадь, м² от 29300 до 38400
Отапливаемый объем, м³ от 87700 до 115000

Газовый водогрейный котел 3.5 МВт в Кыргызстане

Надежный и эффективный промышленный газовый котел 3.5 мощностью 3,5 МВт, предназначен для получения горячей воды номинальной температурой на выходе из котла 95 (115) °С рабочим давлением до 0,6 (6,0) МПа (кгс/см), используется в системах централизованного теплоснабжения на нужды отопления и горячего водоснабжения. Котел газовый 3.5 МВт водогрейный предназначен для работы в открытых и закрытых системах теплоснабжения с принудительной циркуляцией воды. Вид сжигаемого топлива: природный газ. Давление газа перед горелкой может быть как среднее, так и низкое. Также котел может работать с горелкой на сжиженном газе.

Конструкция с продуманной многоходовой схемой движения теплоносителя и газов обеспечивает высокий КПД, долговечность и простоту в эксплуатации.

Применяемые горелочные устройства для водогрейного котла 3.5 на газе:

  • горелки для низкого и среднего давления;
  • горелки, работающие на сжиженном газе;
  • российские двухступенчатые и модулируемые горелки EMMA, ILKA;
  • импортные горелки UNIGAS, BALTUR, ECOSTAR и прочие блочные длинофакельные горелки.

Преимущества газового котла 3,5 МВт HeatExpert производства котельный завод «РЭП»

Водогрейный газовый котел 3.5 МВт гладкотрубной трехходовой конструкции имеет существенные преимущества перед жаротрубными моделями благодаря следующим конструктивным особенностям:

  • Гладкотрубная поверхность нагрева воды имеет развитую поверхность, при компактных внешних размерах плотный пучок конвективных труб, расположенных в шахматном порядке и омываемый дымовыми газами в поперечном направлении обеспечивает высокую тепловую эффективность котельного блока. Газы в котле делают три хода – в топке, в первом конвективном пакете и во втором.
  • Существенное достоинство гладкотрубной конструкции - надежность. Трубная система собирается из труб ввариваемых в коллектор, также охлаждаемые теплоносителем, а не в трубные доски. В таком теплогенераторе отсутствует давление перегретых труб на трубную доску и напряжения в сварных швах, вызывающее деформации и разрыв швов. Материал применяемых труб сталь 20.
  • Быстрый выход на режим и высокая маневренность – благодаря малому водяному объему.
  • В водотрубных котлах 3.5 МВт на газу теплоноситель поступает через коллектор с перегородками и распределяется по трубной системе равномерными потоками с высокой скоростью. Такая схема движения потока воды исключает образование застойных зон, локальный перегрев поверхностей нагрева, местное выпадение солей и отложения накипи, и делает агрегат менее требовательным к качеству питательной воды.
  • И наконец, главное, водотрубный гладкотрубный газовый котел 3.5 МВт безопасен. Даже при внезапном снижении давления внутри теплогенератора до атмосферного не произойдет выделение пара, и он не взорвется.

Устройство водогрейного котла 3.5 МВт на газе

Стальной напольный водогрейный котел 3.5 МВт газовый имеет газоплотные топочную камеру и конвективную часть. В заднем экране топочной камеры выполнено отверстие, в котором установлен взрывной клапан, предохраняющий конструкцию от разрушения при возникновении избыточного давления в топочной камере.

Промышленный отопительный газовый котел 3.5 МВт устанавливается на раму. Рама котла выполнена из швеллера и ставится на опоры. Опоры котла крепятся к ровной подготовленной поверхности анкерными болтами. Блок горелки закрепляется на фронтовой плите с помощью болтовых соединений. Фронтовая плита закрепляется при помощи шарниров и выполняет функцию люка, что позволяет осуществлять доступ в топочную камеру котла для осмотра и ремонтных работ без разбора обшивки и изоляции.

Изоляция выполняется из жаростойких материалов и стальных листов.

Крепления и амбразура под горелку на фронтовой плите изготавливается под выбранную заказчиком горелку. За счет универсальной конструкции топочной камеры, российский газовый водогрейный котел 3,5 МВт может работать с широким рядом горелочных устройств отечественного и импортного производства.

Выход газов в горизонтальном котле 3.5 МВт на газе для отопления происходит сверху. В случае необходимости возможно изготовление опускного газохода.

Также наш завод выпускает модели котлов данной мощности работающие с отечественными горелками марки РГМГ, ГБЛ, ГМ, ГМГ, АПНД, ГГ. Их стоимость вы можете уточнить в отделе сбыта. Данные типы горелок имеют более широкий угол раскрытия факела, поэтому требуется более широкая топочная часть котла.

Стационарный нагревательный водяной котел 3 5 МВт на газе работает под наддувом, без дымососа.

Сфера применения котлов HeatExpert

Производственный водонагревательный котел 3.5-115 (95) ГН на газе применяется для автономного отопления, ГВС и вентиляции различных объектов:

  • цехов, складов, ангаров, производственных баз, гаражей, административных зданий, автосервисов, станций СТО, сушильных камер.
  • теплиц, ферм, птицефабрик, зерносушильных комплексов.
  • больниц, школ, детских садов, санаториев, клубов, административных зданий, магазинов.
  • устанавливается в блочно-модульных и стационарных отопительных котельных для отопления жилых кварталов.

Как купить газовый котел 3,5 (3500 кВт)

Чтобы купить промышленный водогрейный котел 3.5 на газе и получить комплексное решение для вашей котельной, свяжитесь с нами любым удобным способом:

Позвоните в отдел сбыта по телефону:

+8-800-700-17-43

+7 (3852) 29-97-41(42) (многоканальный)

Напишите в отдел сбыта на электронную почту:

SB@KVZR.RU

Отправьте онлайн-заявку на коммерческое предложение через сайт.

Наши специалисты помогут вам:

  • Подобрать необходимую комплектацию и вспомогательное оборудование (горелку, регулятор газа, насосы, щит управления).
  • Рассчитать окончательную стоимость котла с учетом доставки до г. Кыргызстан.
  • Просчитать индивидуальные доработки под ваши технические условия.

Индивидуальные доработки и производство газовых котлов 3,5 HeatExpert

Котельный завод «РЭП» изготавливает котлы 3.5 на газу не только по типовым проектам, но и по техническому заданию заказчика.

Мы можем изготовить для вас:

  • Зеркальное исполнение (расположение штуцеров и патрубков с противоположной стороны).
  • Изготовление опускных и поворотных газоходов.
  • Изготовление амбразуры фронтовой плиты с креплением под вашу горелку.
  • По спец заказу изготовление газового котла 3,5 из цельнотянутой бесшовной трубы ГОСТ 8732 (34).
  • Возможны другие изменения под особенности вашей котельной.

Комплект поставки газового котла 3,5 МВт

Цена водогрейного газового котла 3,5 МВт в Кыргызстане включает в себя котельный блок в изоляции, вентили, затворы, манометры, термометры и предохранительные клапаны. Ниже приведена подробная информация.

Дополнительное вспомогательное оборудование для работы газового котла 3,5 МВт

Для эффективной и надежной работы газового котла 3,5 МВт в вашей котельной вам потребуется дополнительное оборудование - автоматика ЩУК, горелка импортного или отечественного производства, насос сетевой и подпиточный, регулятор давления газа (по необходимости), газоходы и переходники для газового тракта, дымовая труба. Мы предлагаем рассмотреть типовые варианты комплектации.

В случае если у вас на объекте уже имеется насосное и горелочное оборудования, мы можем проверить совместимость газового котла 3,5 МВт нашего производства и вашего оборудования.

Можем изготовить нестандартные узлы для выполнения быстрого монтажа котла - газоходы и узлы обвязки.

Типовую схему монтажа котла вы можете посмотреть во вкладке схемы подключения и монтаж.

  • автоматический розжиг и останов котла;
  • поддержание в заданных пределах температуры теплоносителя на выходе из котла путем позиционного регулирования мощности горелки;
  • плановый останов котла;
  • аварийный останов котла с выдачей аварийной звуковой и световой сигнализации, отображение причины останова на OLED индикаторе и запоминание ее;
  • автоматическая защита, обеспечивающая останов котла и блокировку его пуска при возникновении аварийных ситуаций.
Цена 205 000 рублей с НДС
  • взаимозаменяема с отечественными и импортными блочными горелками (по функциональным, техническим характеристикам, типоразмерному ряду).
  • заводские настройки и простота конструкции позволяют сократить пуско-наладочные работы и привлечение высококвалифицированного персонала.
  • плавное раздельное регулирование подачи газа и воздуха.
  • контроль герметичности газовой арматуры.
  • режим ручного управления мощностью.
  • возможность подключения датчика кислорода.
  • высокая степень помехозащиты.
Цена 985 000 рублей с НДС

Производим газоходы по индивидуальному заказу согласно схеме компоновки котельной. Системы газоходов могут включать в себя:

  • шиберы;
  • газоходы различного сечения;
  • переходы;
  • тройники;
  • карманы всасывающие дымососов.

Используется в качестве сетевого насоса в промышленных отопительных котельных

Используется в качестве сетевого насоса в промышленных отопительных котельных

Цена 62 200 рублей с НДС

Используется в качестве сетевого насоса в промышленных отопительных котельных

Цена 338 700 рублей с НДС

Схемы подключения и монтаж газового котла 3,5 МВт

Водогрейный стальной отопительный котел 3,5 МВт газовый, предназначен для получения горячей воды номинальной температурой на выходе из котла от 95 до 115 °С рабочим давлением до 0,6 (6,0) МПа (кгс/см), используемой в системах централизованного теплоснабжения на нужды отопления, горячего водоснабжения. Устанавливается в производственных, промышленных и отопительных котельных.

Схема подключения и монтажа водогрейного промышленного газового котла 3,5 МВт
Смотреть
Скачать

Схема подключения и монтажа газового котла 3,5 МВт

Монтаж водогрейного газового котла 3,5 МВт и вспомогательного оборудования в котельной должно производиться в соответствии с проектом и учетом требований СП 89.13330. 2016 «Котельные установки. Актуализированная редакция СНиП II-35-76» и «Правил устройства и безопасной эксплуатации паровых котлов с давлением пара не более 0,07 МПа (0,7 кгс/см2), водогрейных котлов и водоподогревателей с температурой нагрева воды не выше 388 К (115 С)». Правильный монтаж котла – залог его надежной и долгой работы.

Чтобы правильно подключить котел 3,5 МВт газовый в котельной необходимо оставить проемы для обслуживания оборудования во время эксплуатации. На представленной здесь схеме указаны их минимальные размеры. Кроме того, в данной примерной схеме монтажа водогрейных котлов и оборудования указан перечень минимально необходимого вспомогательного оборудования для правильной работы котла.

К вспомогательному оборудованию при подключении промышленного водогрейного котла КВа относят - щит управления котлом, горелку импортного или отечественного производства, насос циркуляционный, насос подпиточной воды, регулятор давления газа (по необходимости), бак запаса воды, расширительный мембранный бак, газоходы и переходники для газового тракта, дымовую трубу.

В случае если подпиточная вода не соответствует по своим характеристикам требованиям к питательной воде, необходимо предусмотреть систему водоподготовки котловой воды.

Для котельных 1 категории, являющиеся единственным источником тепла системы теплоснабжения и обеспечивающие потребителей первой категории, не имеющих индивидуальных резервных источников тепла, необходимо предусмотреть полное резервирование оборудования – подключение 2 (двух) котлов, насосов, ТДМ. Пунктиром обозначено оборудование для резервирования.

Для котельных 2 категории, включающие в себя промышленные и производственные котельные резервирование нужно предусматривать по необходимости.

Дополнительные услуги

Сертификат и качество газового котла 3,5 МВт ГЛЖ

Водогрейные котлы производства Котельный завод "РЭП" соответствуют строгим стандартам качества и безопасности. Завод производит котлы в соответствии с требованиями ГОСТ 30735-3001 по Техническим Условиям завода.

Котлы имеют сертификаты соответствия Техническим регламентам Таможенного союза:

  • ТР ТС 010/2011 «О безопасности машин и оборудования».
  • ТР ТС 032/2013 - «О безопасности оборудования, работающего под избыточным давлением».
  • ТР ТС 016/2011 «О безопасности аппаратов, работающих на газообразном топливе»

Водогрейный котел 3,5 МВт газовый имеет гарантийный срок 24 месяца и срок работы при соблюдении правил монтажа и эксплуатации оборудования 10 лет.

Сертификат на котлы водогрейные .jpg
Сертификат на водогрейные котлы
Сертификат на водогрейные газовые котлы .jpg
Сертификат на газовые водогрейные котлы
Знак товарный на водогрейные котлы HEATEXPERT .jpg
Товарный знак на водогрейные котлы HEATEXPERT

Отзывы о продукции

Отзыва о товаре пока нет, будьте первыми!

Водогрейные котлы, мощностью от 175 КВт до 4 МВт используются для отопления производственных, административных и жилых зданий. Котельный завод производит и поставляет весь перечень сопутствующего котельного оборудования - насосы, газоходы, автоматику, дымососы, дымовые трубы, циклоны и прочее. Специалисты нашего завода бесплатно подберут сопутствующее оборудование, а в случае необходимости, выполнят проектирование, монтаж и пуско-наладку котельной установки.

Смотреть видеообзор на
Подберите необходимую мощность котла для вашего объекта
Тип здания
Регион
Населенный пункт
Вид топлива
Наружный объем здания (м3)
Отапливаемый подвал

Как подобрать мощность котла для вашего объекта

Подобрать мощность котла по площади важно учитывая не только площадь и объем здания, но и тип зданий и климатические данные региона.

На нашем сайте калькулятор расчета мощности котла учитывает тепло, требуемое на возмещение тепловых потерь через строительные конструкции и потери, вызываемые инфильтрацией (проникновением) наружного воздуха, через их неплотности и периодически открываемые двери.

Наружный строительный объем здания должен определяться умножением площади горизонтального сечения, взятого по внешнему обводу здания на уровне первого этажа на полную высоту здания, измеренную для панельных зданий: от уровня чистого пола (нулевой отметки) до верхней плоскости теплоизоляционного слоя чердачного покрытия, для остальных строений от уровня земли.

Расчетная температура воздуха в отапливаемых зданий принимается в зависимости от типа и назначения здания:

  • Гостиница, общежитие, административное здание, жилые дома + 20 °С;
  • Детские сады, ясли, поликлиники, амбулатории, диспансеры, больницы + 22 °С;
  • Высшие и средние специальные учебные заведения, общеобразовательные школы, школы интернаты, лаборатории, предприятия общественного питания, клубы, дома культуры + 16 °С;
  • Театры, магазины, пожарные депо + 15 °С;
  • Кинотеатры + 14 °С;
  • Гаражи + 10 °С;
  • Бани + 25 °С.

В случае если требуется отопление различных по типу зданий, теплопотребление каждого считается отдельно, полученные значения складываются и подобрать мощность котла нужно в соответствии с общей суммарной мощностью каждого отдельно стоящего задания.

Климатические условия вашего региона принимаются в соответствии с СП 131.13330 Строительная климатология. Данные по всем регионам России занесены в наш калькулятор расчета мощности котла.

Подобрать мощность котла по площади с учетом потребностей объекта в тепле на вентиляцию и горячую воду возможно только с более детальным расчетом. Его вы можете заказать в отделе сбыта котельного завода отправив заявку на электронный адрес sb@kvzr.ru или позвонив по телефонам (38-52) 29-97-41, 29-97-42.

Вопрос-ответ

  • Технические
    характеристики
  • Описание
    товара
  • Комплект
    поставки
  • Дополнительно
    потребуется
  • Подключение и
    монтаж
  • Сертификаты и
    гарантии
  • Отзывы о
    продукции
  • Видео
    обзор
  • Подбор
    котла
Документы завода
  • Сертификаты завода
  • Членство в СРО
  • Аттестованная технология сварки
  • Патенты на котельное оборудование
  • Товарные знаки
Смотреть все документы
Сертификат на водогрейные котлы на твердом и жидком топливе
Сертификат на водогрейные котлы на газе и жидком топливе
Сертификат на котлы отопительные паровые КП
Сертификат на топки
Сертификат на щиты управления
Сертификат на скиповые подъемники
Сертификат на золоуловители (циклоны)
Сертификат на конвейеры скребковые
Сертификат на дробилки
Сертификат на клапаны предохранительные
Сертификат на бункер-накопитель механизированный
Сертификат на автоматику газовых горелок
Сертификат о происхождении товара форма СТ-1
Членство в СРО
Членство в СРО
Аттестованная технология сварки
Свидетельство аттестованной технологии сварки
Патент на отопительный котел
Патент на водогрейный котел
Патент на топку водогрейного котла
Патент на водогрейный газовый котел
Патент на водогрейный котел
Патент на топочное устройство твердотопливного котла
Патент на водогрейный котел
HEATEXPERT товарный знак
KVZR товарный знак
STEAMEXPERT товарный знак
Другая похожая продукция
Дизельный котел отопления
Лизинг
Вид топкиДизельная горелка
Максимальная тепловая мощность, МВт3.5
ТопливоДизель, Жидкое
Отапливаемая площадь, м²29300-38400
1 589 000 р. Цена с НДС
Мазутный котел
Лизинг
Вид топкиМазутная горелка
Максимальная тепловая мощность, МВт3.5
ТопливоМазут, Жидкое
Отапливаемая площадь, м²29300-38400
1 602 000 р. Цена с НДС
Котел 3.0 МВт газовый
Лизинг
Вид топкиГазовая горелка
Максимальная тепловая мощность, МВт3
ТопливоГаз
Отапливаемая площадь, м²25000-32900
1 428 000 р. Цена с НДС
Котел КВа HeatExpert
Лизинг
Вид топкиГазовая горелка
Максимальная тепловая мощность, МВт4
ТопливоГаз
Отапливаемая площадь, м²33400-44000
1 728 000 р. Цена с НДС
Мазутный котел КВГМ 3.5 МВт
Лизинг
Вид топкиМазутная горелка
Максимальная тепловая мощность, МВт3.5
ТопливоМазут, Жидкое
Отапливаемая площадь, м²29300-38400
1 589 000 р. Цена с НДС
Котел КВ ГМ под отечественную горелку
Лизинг
Вид топкиГазовая горелка
Максимальная тепловая мощность, МВт3.5
ТопливоГаз
Отапливаемая площадь, м²29300-38400
1 589 000 р. Цена с НДС
Котел под горелку российского производства
Лизинг
Вид топкиДизельная горелка
Максимальная тепловая мощность, МВт3.5
ТопливоДизель, Жидкое
Отапливаемая площадь, м²29300-38400
1 589 000 р. Цена с НДС
Вы просматривали эти товары
Котел КВа HeatExpert
Лизинг
Вид топкиГазовая горелка
Максимальная тепловая мощность, МВт3.5
ТопливоГаз
Отапливаемая площадь, м²29300-38400
1 589 000 р. Цена с НДС
Котел КВм 1 МВт с ТШПМ
Лизинг
Вид топкиТШПМ, Механическая
Максимальная тепловая мощность, МВт0.93
ТопливоТвердое, Уголь
Отапливаемая площадь, м²7100-10200
1 347 000 р. Цена с НДС
Паровой котел КП 300 на дизеле
Лизинг
Производительность, кг/ч300
ТопливоЖидкое, Дизель
Температура пара, не более, °C115
Давление пара, не более, МПа0.07
540 000 р. Цена с НДС
Пеллетный котел 300 кВт
Лизинг
Вид топкиРетортная, Автоматическая
Максимальная тепловая мощность, кВт300
ТопливоПеллеты
Отапливаемая площадь, м²2300-3300
818 000 р. Цена с НДС
background